Новинки магазина

← Вернуться назад

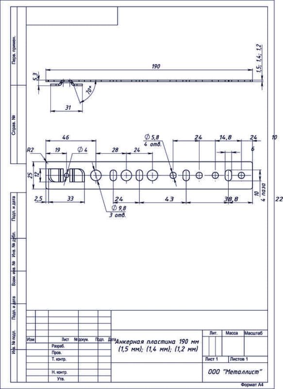
анкерная пластина 190 мм ГОЦ (200)

Артикул: 0000007185
Нет на складе
Есть в наличии
цена с НДС
Розничная цена: 0,94 руб
Количество:
+

Нет на складе

Способы доставки
  • Быстрая доставка по Беларуси
  • Самовывоз со склада в Могилеве
Способы оплаты
  • Безналичный расчет
  • Оплата наличными
  • Оплата по терминалу
Описание

Крепежная анкерная пластина KBE изготовлена из оцинкованной стали путём холодной штамповки. Она предназначена для монтажа оконных рам на различных типах оснований: бетон, кирпич, дерево. Представленные анкерные металлические оконные пластины используются для профильных систем с коробкой. Данная пламстина не деформирует оконные рамы при температурных перепадах и помогает продлить срок службы стеклопакетов. Поэтому её можно использовать с основаниями из пенобетона и других пористых материалов, где применение стержневого крепежа затруднено. Установить пластину анкерную можно без предварительного заглубления и последующих отделочных работ. Это позволяет быстро и удобно монтировать оконные конструкции. Качественные материалы и продуманная конструкция делают соединение оконных рам прочным и долговечным.

Характеристики
  • Производитель:
    Металлист
  • Цвет:
    ГОЦ
  • Материал:
    металл
Отзывы
Пока нет комментариев
Написать отзыв
Название Юр.лица (Например: ООО "Вектор")*
Email
Введите комментарий*
Онлайн-заказ
Онлайн-заказ
Гарантия качества
Гарантия качества
Лучшие цены
Лучшие цены
Быстрая доставка
Быстрая доставка